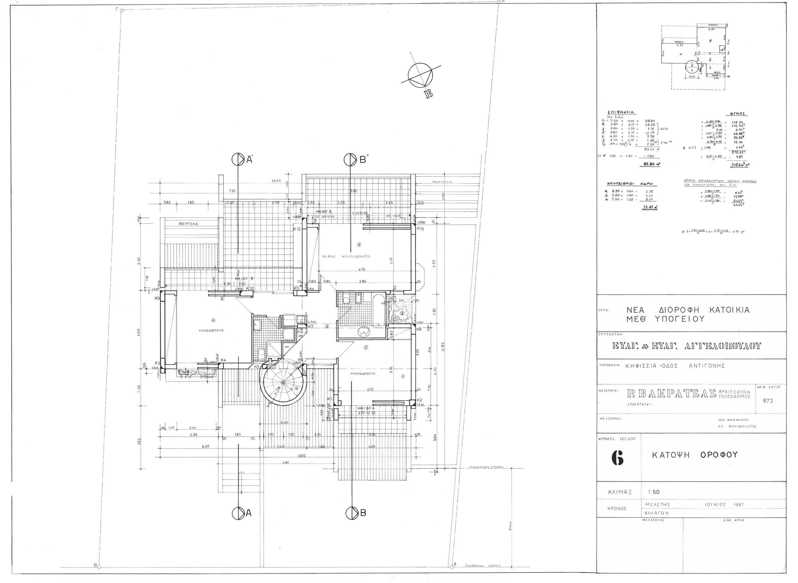
Two-storey house | Antigonis Street, Kifissia

1987