Αρχική σελίδα
Έργα
Beaux art
Δημοσιεύσεις
Σχετικά
Αρχική σελίδα
Έργα
Beaux art
Δημοσιεύσεις
Σχετικά
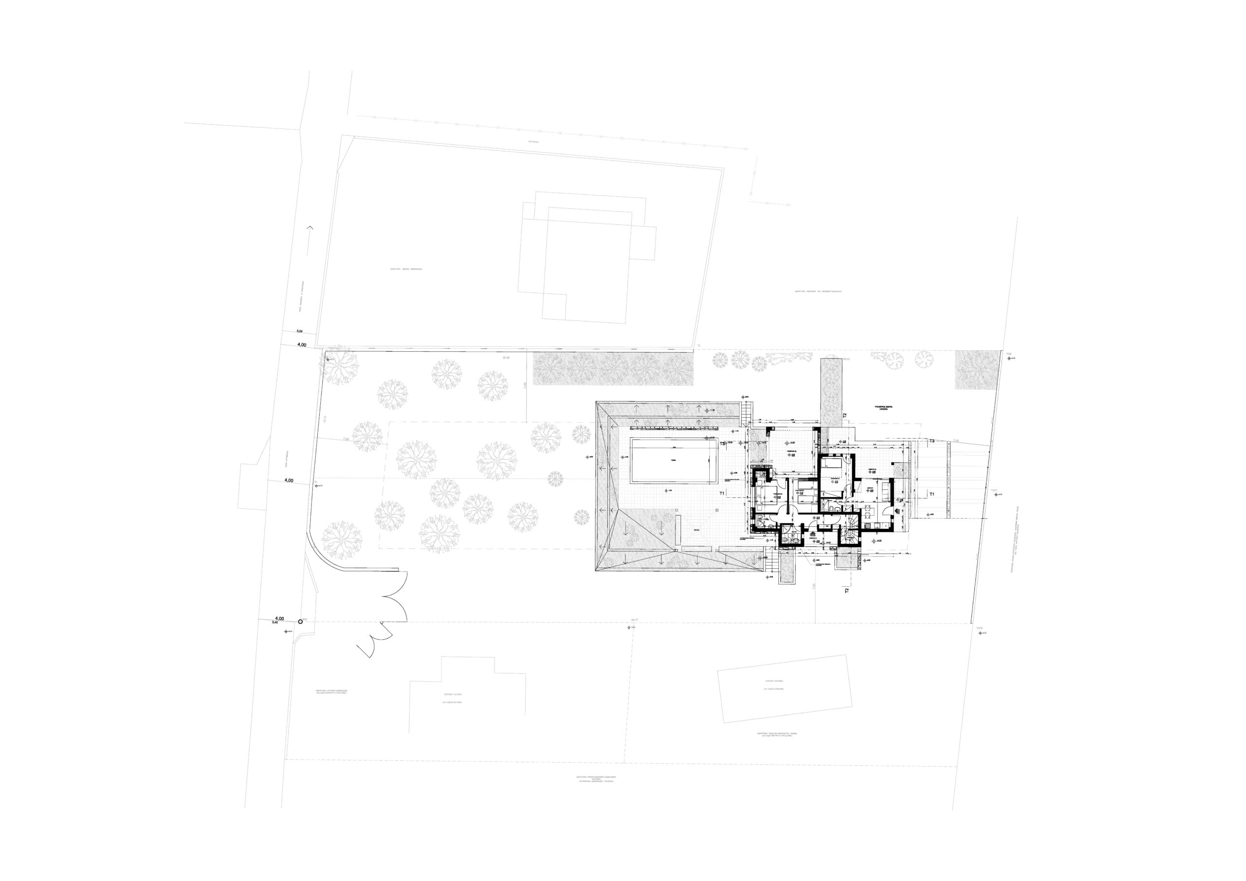
Κατοικία | Αίγινα
2007