Αρχική σελίδα
Έργα
Beaux art
Δημοσιεύσεις
Σχετικά
Αρχική σελίδα
Έργα
Beaux art
Δημοσιεύσεις
Σχετικά
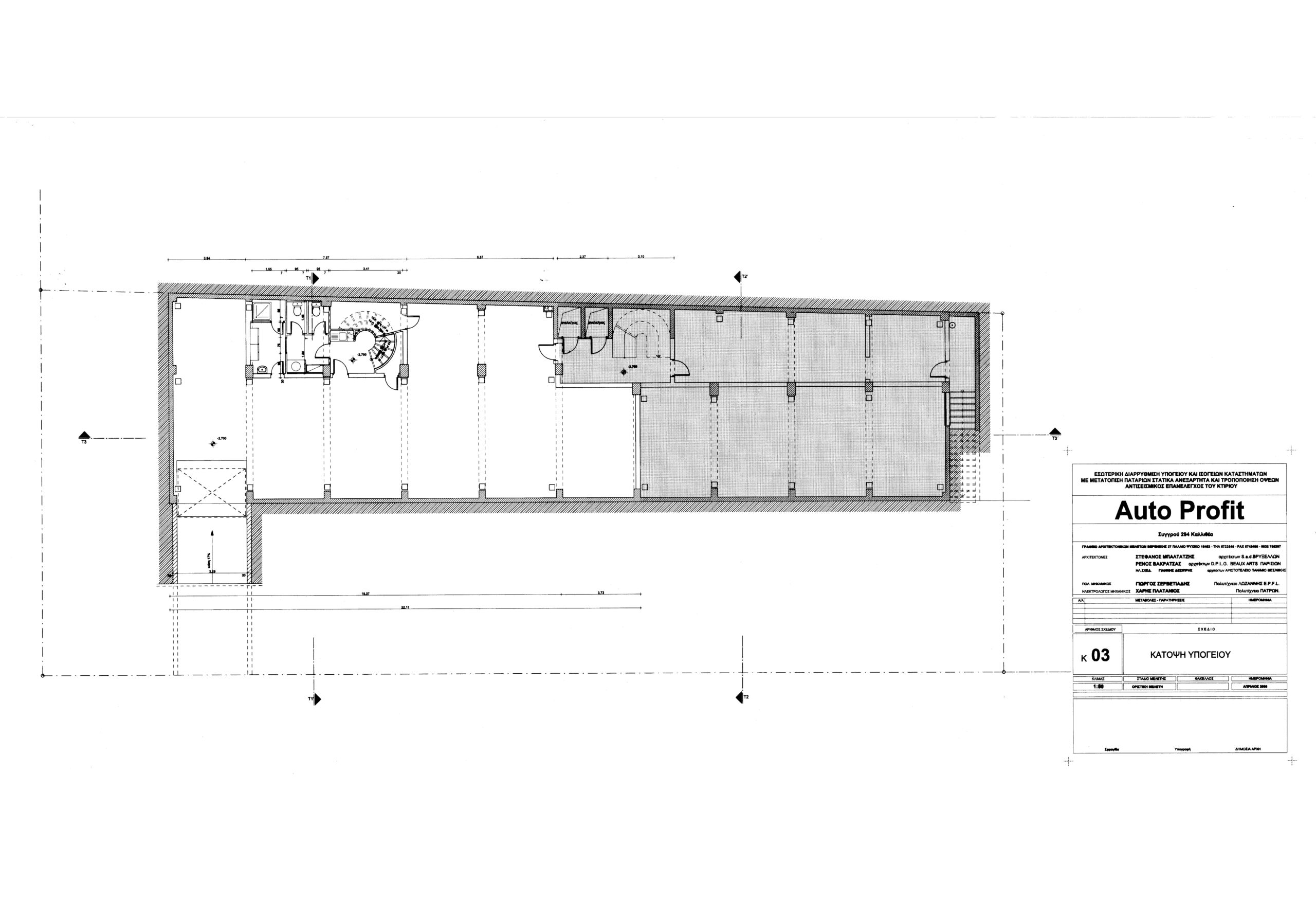
AUTOPROFIT | Λεωφόρος Συγγρού | Στέφανος Μπαλτατζής
Σε συνεργασία με τον γνωστό αρχιτέκτονα
Στέφανο Μπαλτατζή
2000